Agence Immobilière Chaves
à Ettelbruck
RECHERCHE

Maison jumelée à vendre à Mertzig

  • Référence : 85827833
  • Type : Maison jumelée
  • Surface habitable : +/-195 m2
  • Superficie terrain : +/- 4,22 ares
  • Prix de vente : 899 000 €
  • Honoraires d'agence :
  • Disponibilité : Immédiate
Contact
Classe énergétique
NC
Classe d'isolation thermique NC

Description

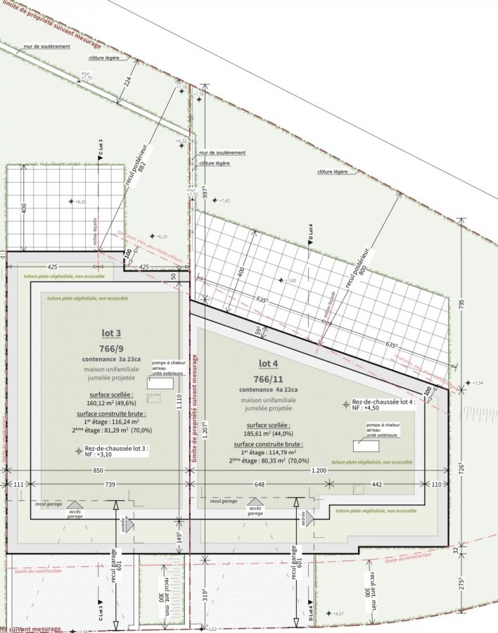
L'agence Chaves vous présente cette belle maison jumelée, clé en main à Mertzig, rue Butzebierg.

Le terrain a une surface totale de 4,22ares et une surface constructible de 185,61m2.

La surface habitable du bien est environ 195m2.

Prix de vente du terrain seul est 320 000 EUR avec les plans de construction

----------
Die Agentur Chaves präsentiert Ihnen diese schöne, schlüsselfertige Doppelhaushälfte in Mertzig, Rue Butzebierg.

Das Grundstück hat eine Gesamtfläche von 4,22ares und eine bebaubare Fläche von 185,61m2.

Die Wohnfläche der Immobilie beträgt ca. 195m2.

Verkaufspreis für das Grundstück allein ist 320.000 EUR mit Bauplänen

----------
The Chaves agency presents this beautiful, turnkey semi-detached house in Mertzig, rue Butzebierg.

The plot has a total surface area of 4.22ares and a buildable area of 185.61m2.

The living area is approx. 195m2.

Selling price of the plot alone is EUR 320,000, including building plans.

Caractéristiques

Extérieur

Terrain4.22 ares

Chauffage / climatisation

ChauffageOui

Contactez-nous

+352 811 942

Vous
 
Champs obligatoire
 
 
En envoyant ce formulaire, j’accepte que mes informations soient enregistrées puis utilisées par notre agence afin de répondre à ma demande. Consultez notre pour connaître vos droits.
 

Localisation

Mertzig