Agence Immobilière Chaves
à Ettelbruck
RECHERCHE

Terrain constructible à vendre à Mertzig

  • Référence : 85827707
  • Type : Terrain constructible
  • Superficie terrain : +/- 3,23 ares
  • Prix de vente : 255 000 €
  • Honoraires d'agence :
  • Disponibilité : Immédiate
Contact
Classe énergétique
NC
Classe d'isolation thermique NC

Description

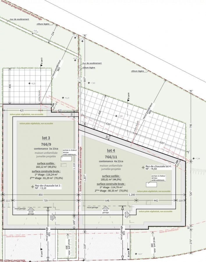
L'agence Chaves vous présente cet terrain constructible à Mertzig, rue Butzebierg SANS CONTRAT de construction pour une maison jumelée.

Le terrain a une surface totale de 3,23ares et une surface constructible de 160,12m2.

Prix de vente est 290 000 EUR avec plans de construction
De plus:
Disponibilité d'un lot de 4,22ares pour un prix de 320 000EUR

Possibilité:
Maison clé en main: 890 000 EUR

----------
Die Agentur Chaves präsentiert Ihnen dieses Baugrundstück in Mertzig, rue Butzebierg OHNE BAUVERTRAG für eine Doppelhaushälfte.

Das Grundstück hat eine Gesamtfläche von 3,23ares und eine bebaubare Fläche von 160,12m2.

Der Verkaufspreis beträgt 290.000 EUR mit Bauplänen.
Darüber hinaus:
Verfügbarkeit eines Grundstücks von 4,22ares für einen Preis von 320.000EUR.

Es besteht die Möglichkeit:
Schlüsselfertiges Haus: 890.000 EUR

----------
Chaves agency presents this building plot in Mertzig, rue Butzebierg WITHOUT CONTRACT for a semi-detached house.

The plot has a total surface area of 3.23ares and a building area of 160.12m2.

Selling price is 290,000 EUR with building plans.
Also available:
Availability of a 4.22-hectare lot for 320,000EUR

Possibility:
Turnkey house: 890,000 EUR

Caractéristiques

Extérieur

Terrain3.23 ares

Chauffage / climatisation

ChauffageOui

Contactez-nous

+352 81 19 42

Vous
 
Champs obligatoire
 
 
 
En envoyant ce formulaire, j’accepte que mes informations soient enregistrées puis utilisées par notre agence afin de répondre à ma demande. Consultez notre pour connaître vos droits.
 

Localisation

Mertzig